A nem lett piac és mozi
Szolnok új városközpontjának terveit – ahogy arról a blogSzolnok Évfordulós álom című cikkében már írtam – a város „felszabadulásának” negyedszázados évfordulójára publikálta a Lakó és Kommunális Épületeket Tervező Vállalat (Lakóterv) kollektívája. Az elképzelés a mai Baross, Kápolna, Ady Endre utcák és a Boldog Sándor István körút által határolt területtel foglalkozott, a pártházat és az SZTK-t adottságként kezelve, miközben a Pelikán szálló és a vízügyi székház építése már zajlott e terv bemutatásakor. A nagyívű elképzelésekből a vízügyi és az olajos székház, a Pelikán valamint a Centrum áruház, illetve az ahhoz két oldalról kapcsolódó üzletsor és az ezek által közrefogott belső udvar valósult meg. Minden egyéb, azaz három további irodaház – ebből kettő magasház -, az önálló könyvtár és művelődési ház a Kápolna út mentén, továbbá az új vásárcsarnok és egy ABC tetejére kerülő mozi ugyanúgy álom maradt, mint az az emeletes passzázs, amely lényegében az SZTK-tól a Centrumig vezetett volna a tömb két oldalán.
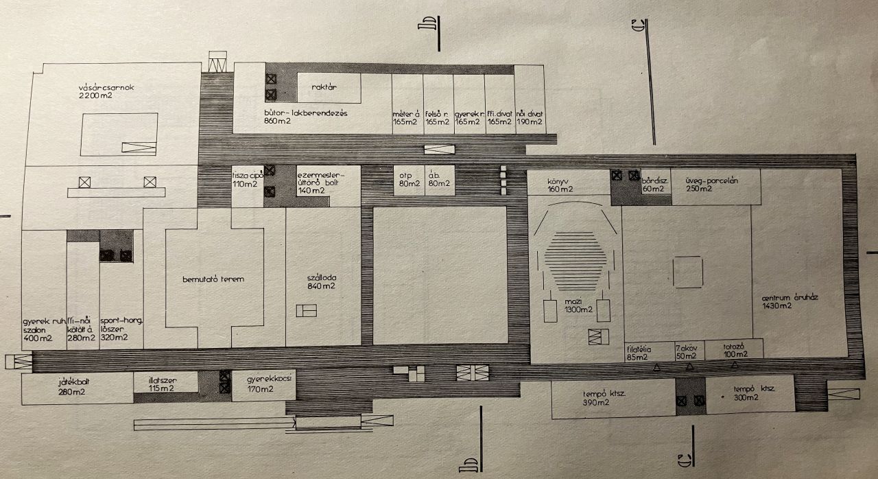
A meg nem valósul vásárcsarnok vagy piac tervei különösen érdekesek, főleg annak fényében, hogy egy ilyen intézmény építése 1969-ben már minimum egy, de az is lehet, hogy két évtizedes vágya volt a szolnokiaknak. Korábban már írtam róla, hogy a Kossuth téri piacot az első hároméves terv (1948-1950) idején kellett felszámolni, hogy aztán a Csarnok utca, illetve a mai Ady és Boldog Sándor István kereszteződésében oldják meg ezt a kereskedési formát. Lehet, hogy eleinte úgy gondolták, piacok nélkül is működtethető egy szocialista nagyváros, ám a hatvanas évek elején már többször felmerült az igény egy korszerű vásárcsarnok felépítésére. Ugyancsak foglalkoztam már azzal, hogy voltak tervek a Konstantin és a Mikszáth Kálmán utca közé építendő vásárcsarnokra, és a mai piac helyére is álmodtak már 1963 körül mélygarázsos (!) csarnokot. Ám ezekből ugyanúgy nem lett semmi, mint az új városközpontba tervezett épületből. Amiben az a legérdekesebb, hogy miközben az új városközpont építése még javában zajlott, és szó sem volt annak félbehagyásáról, a Lakóterv által megrajzolt álmot elengedték, és gyorsan felhúztak egy könnyűszerkezetes csarnokot, azaz a mai piacot. Vajon miért történt így?
Pedig az 1969-es terv nemcsak impozáns, de még a mai tömbszerkezetbe is bele illene, sőt azt mondom, ma is hiányzik a pláza előtti parkolóból. Merthogy a Lakóterv úgy gondolta, hogy a leendő, háromszintes szolnoki vásárcsarnoknak az SZTK mellett futó Budai Nagy Antal és az Ady Endre utcák találkozásánál kell állnia. Egyik déli sarka nagyjából a mai Pelikán még meglévő külső lépcsőjénél, a másik pedig az SZTK pláza főbejárata felőli sarkánál lett kijelölve. Azzal, hogy az autóforgalmat a mai pláza helyén lévő parkolónak kellett volna kezelnie, miközben a vásárcsarnok árufeltöltéséről egy ugyanolyan belső udvaron keresztül gondoskodtak a tervben, mint amilyen a Centrum és a művelődési ház között ma is található.
A Lakóterv elképzelései szerint az 1860 négyzetméter alapterületű, háromszintes vásárcsarnok egy belső udvaros épület lett volna. A földszinten, az Ady Endre utca felőli oldalra helyezték a főbejárat, egy hatalmas üvegfelületbe, miközben ezen a szinten az udvar három oldalát boltok fogták körbe, miközben középre piaci pultot helyeztek. Minden raktárt és kiszolgáló helyiséget a belső udvarra néző üzletek mögé terveztek, így az áru mozgatása a vásárlók elől rejtve zajlott volna. Az emeleten az Ady Endre utca felé eső oldalra álmodták a piaci asztalok, miközben a túloldalra boltokat terveztek. A legfelső szinten – kvázi a tetőn – pedig csak piaci pultok kaptak volna helyet. Az egész épület megvilágításáról pedig a hatalmas oldalsó és a tetőre helyezett ablakok gondoskodtak volna, ha megépül. Tényleg érthetetlen, hogy miközben javában zajlott a Pelikán és a vízügyi székház építése, miért kellet lemondani erről a jó tervről.
Miközben az 1300+320 négyzetméter alapterületű mozi elengedése valahol érthető. Ezt a mozit az 1979-ben elkészült Megyei Művelődési és Ifjúsági Központ helyére álmodta a Lakóterv még akkor, amikor úgy gondolták, hogy a művelődési ház a Kápolna és a Baross utca sarkára kerül. Ez utóbbiról azonban már 1973-ban tudni lehetett, hogy ha nem is mondtak le róla, de forrás hiányában későbbre halasztották, aminek a következménye aztán helyszín megváltoztatása is lett. Így az MMIK végül az 1969-ben tervezett 1140 négyzetméteres csemege ABC, illetve a hozzá kapcsolódó esernyőbolt, rádióbolt, eszpresszó, illetve a mozi előcsarnoka által elfoglalt területre került. Merthogy az a meg nem valósult mozi az emeleten lett volna, érdekes módom pont úgy elhelyezve, ahogy ma a Liszt Ferenc terem székei állnak.
Ezzel a meg nem valósult moziálommal kapcsolatban érdemes megemlíteni, hogy Szolnokon már az ötvenes évek óta szerettek volna egy korszerű, nagy befogadóképességű filmszínházat. Merthogy akkoriban csak a Vörös csillag és a Tisza mozi üzemelt a városban – plusz Szandaszőlősön a Terv -, ám ezek nem filmszínháznak épültek eredetileg. Így született meg először az a terv, hogy a Táncsics és a Szigligeti utcák között, a Kossuth útra néző főbejárattal épül fel a szolnoki filmpalota, amit hamar levett a napirendről a Kossuth tér 10. számú lakóház, azaz a „lordok háza” felépítése. Miként az is valószínű, hogy az 1969-ben az új városközpontba tervezett mozi is nagyon gyorsan a meg nem valósuló álmok közé került, hiszen a hetvenes évek elején döntés született a Tallinn filmszínház felépítéséről.


